
Needham Library Teen Renovation
Description
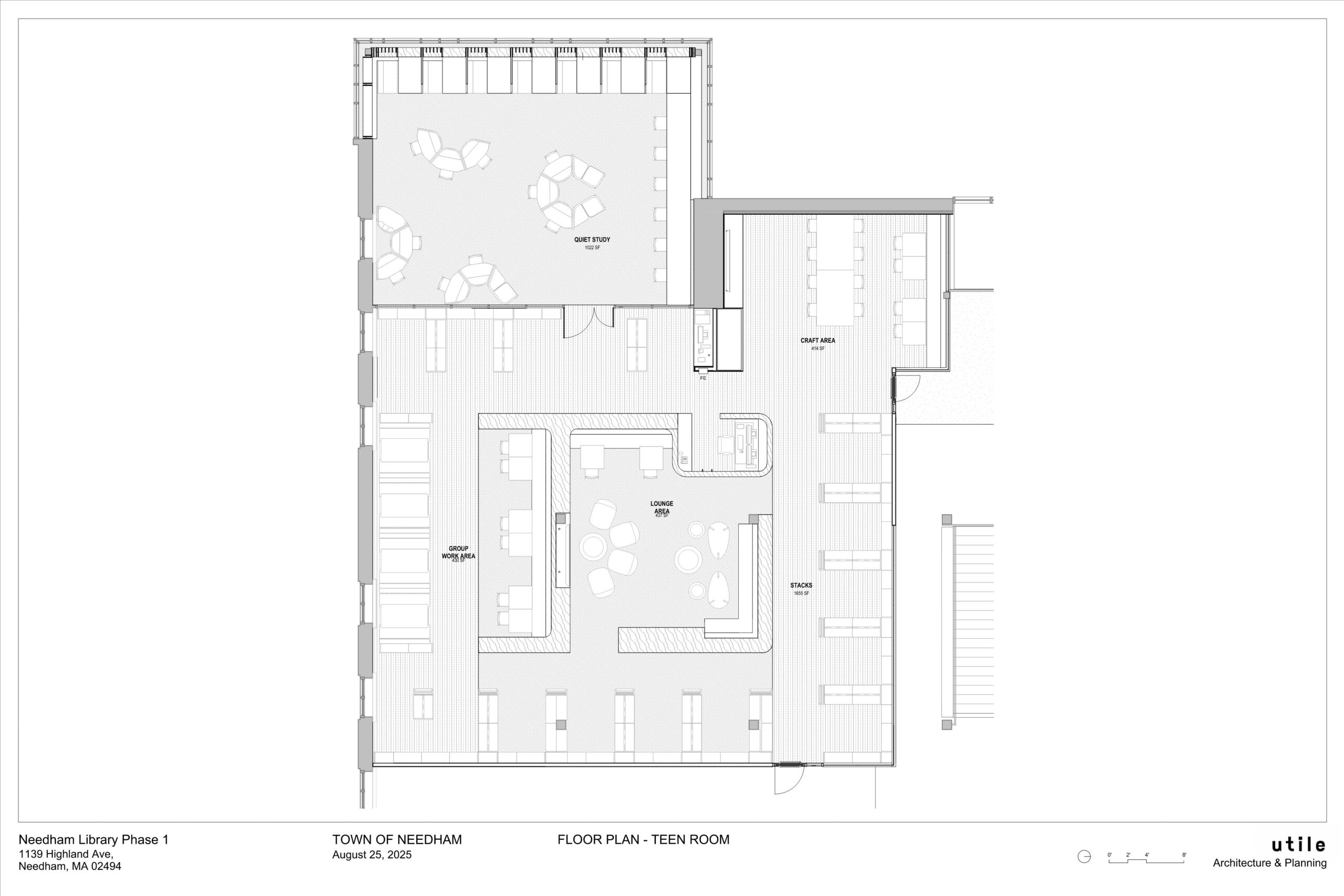
The existing teen space in the Needam free public library is too small to accommodate the large influx of teens from the high school across the street. The goal of this phase is to create a larger space which the teens can make their own. During the preliminary study phase we spoke to many different stake holders and identified a series of character descriptions and desired uses for the space. Using these criteria we developed four zones of use within the teen space. A lounge area will be a comfortable hang out space where teens can talk, play games, do puzzles or watch movies. A Craft/Cafe area will be an easily cleanable area to do arts and crafts and to eat or drink. The group study area will be a quieter zone with booths and group tables for working collaboratively. Finally the quiet work area can be closed off from the rest of the space for individual focused work. A priority for the project was to create more seating and gathering space; however, we also designed the space to house the library’s 10,700 volume young adult collection. We used the stacks as well as two large millwork pieces to define the zones. The lounge millwork piece wraps the central zone and houses seating, storage and shelving while providing a sense of separation. The Quiet study millwork piece houses study carrels and includes a wooden screen to shield the large southern and western expanses of glass and reduce glare and overheating.
