
1200 Montello
Description
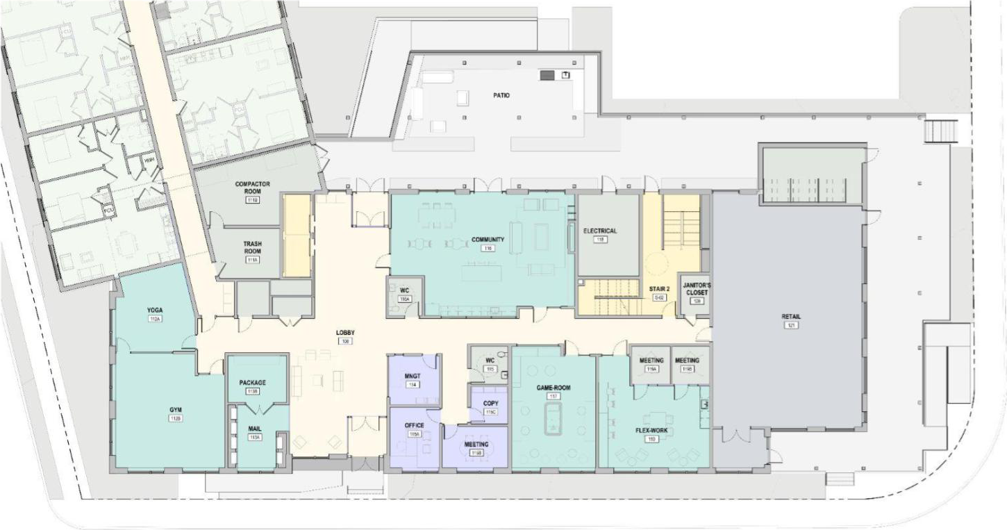
Utile is designing this 94-unit affordable development in collaboration with Neighborhood Housing Solutions in the Campello neighborhood of Brockton. Situated directly adjacent to a commuter rail station on the Middleborough/Lakeville Line, the project will bring much needed transit-oriented residential capacity to a formerly industrial area. Generous ground level residential amenity spaces are complemented by a corner retail storefront, serving to activate the street and create an anchor in the neighborhood for future development.

Designed to the PHIUS+ 2021 Passive House standard, the project combines well-insulated, airtight, and durable building envelope assemblies with highly efficient mechanical systems, and a rooftop photo-voltaic array to maximize operational energy efficiency, resident comfort, and indoor air quality. The project is designed to be 100% electric, eliminating the need for on-site fossil combustion for space conditioning and domestic water heating. The design provides a generous landscaped patio, planting buffers, and stormwater bioswale to improve the resident and pedestrian experience.