
Fessenden School Dining Commons
Description
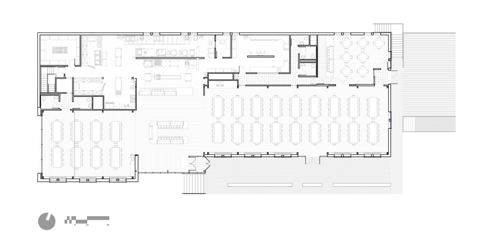
The Fessenden School in Newton, MA serves over 1,000 meals per day to its campus population of boarding and day students, faculty, and staff. This new full service dining facility includes a highly efficient kitchen and a dining room designed to accommodate a radically shifting capacity throughout the day, serving 50 people at some meals and 260 at others. By dividing the dining room in two, the space can adapt to meet varied needs throughout the day. Working within the existing material palette of the school’s historic campus, the exterior of the building showcases subtle changes in material texture. The building will help to update a signature campus lawn, and will feature a patio and grand stair to support campus life. The exposed glulam timber structure spans the dining room efficiently while also giving the interior distinctive character.
