
Portland Front Street Affordable Housing Phase I
Description
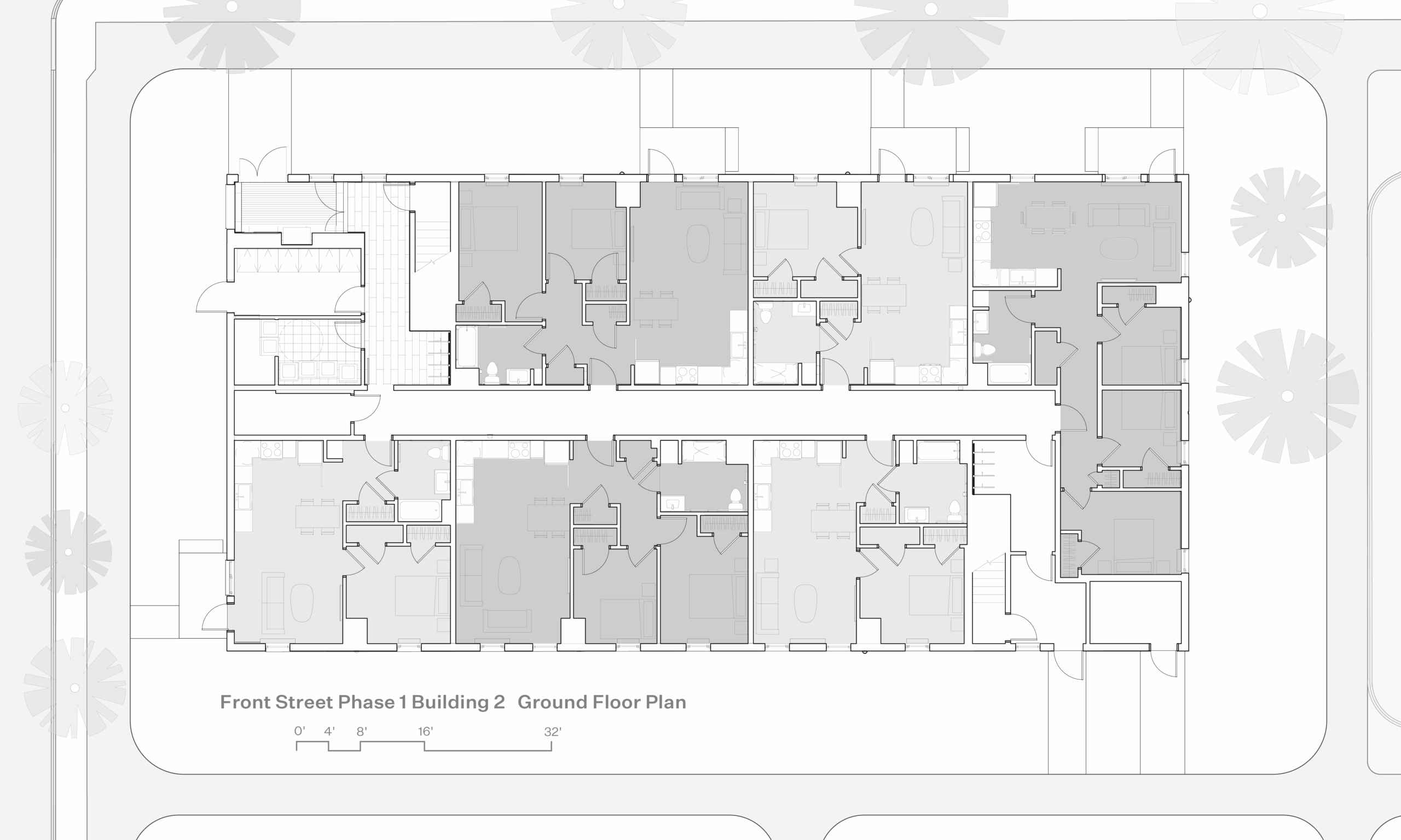
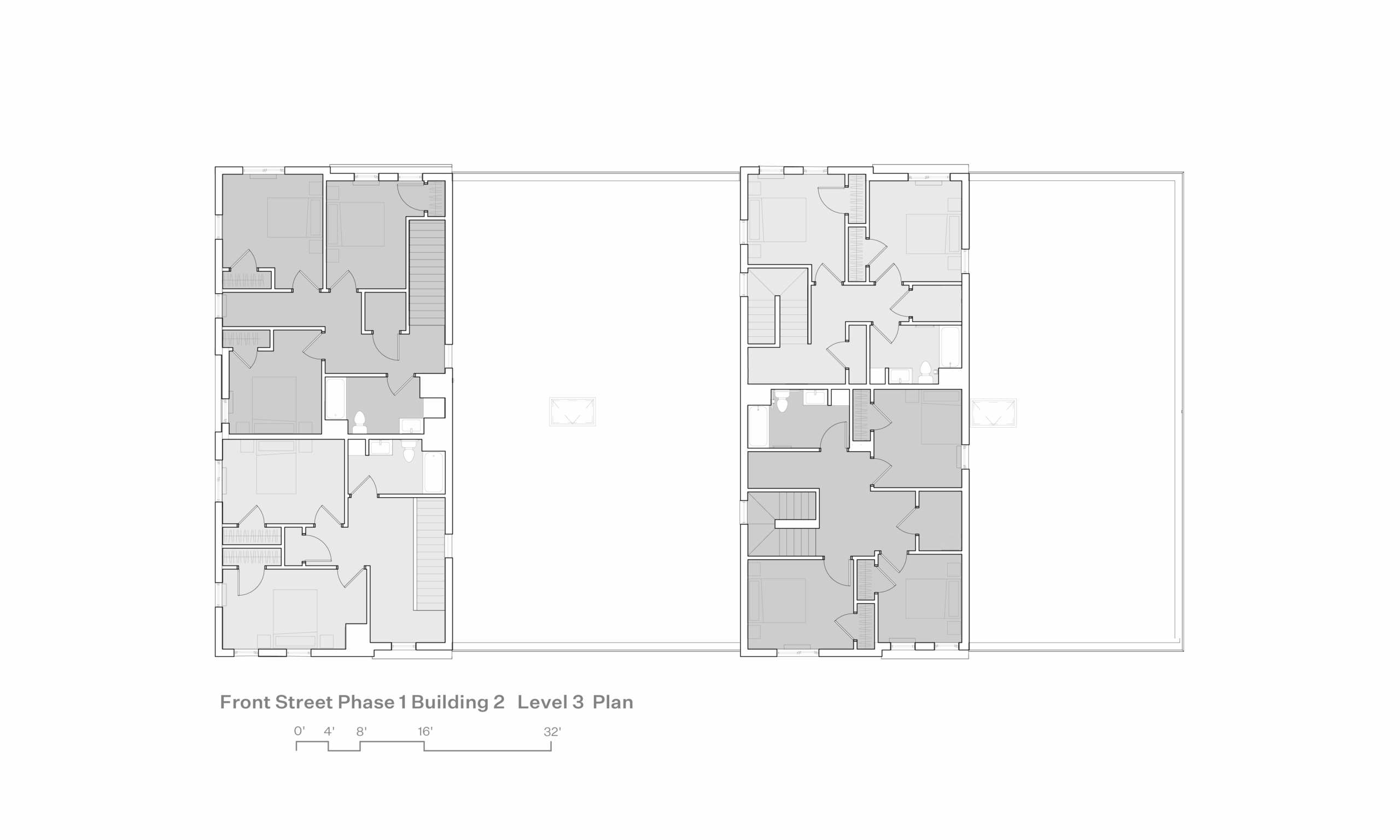
Building on a strategic plan by the Portland Housing Authority, Front Street Phase 1 is the first step in a long-range plan to expand and modernize Portland, Maine’s public housing stock. The redevelopment replaces outdated buildings with 60 new apartments designed to meet the needs of large and multigenerational families, many of whom are part of Portland’s immigrant and refugee communities. A mix of three, four, and five-bedroom homes provides the rare unit types needed to keep families rooted in place.

The re-organized site includes four new buildings and a series of clearly defined open spaces, gardens, and play areas that connect directly to a neighborhood park and transit corridor. A community center anchors the development with shared gathering and support spaces. Certified under Phius CORE 2018, the housing pairs affordability with performance, efficiency, and durability. As the first phase of a multi-site redevelopment, Front Street establishes a replicable framework for affordable housing that advances equity, sustainability, and community life.



